首页 > 分享 > 主题咖啡厅cad

主题咖啡厅cad

标签: 主题咖啡厅cad资料 主题咖啡厅cad案例 主题咖啡厅cad视频

主题咖啡厅cad专题为您提供主题咖啡厅cad的相关资料与视频课程,您可以下载主题咖啡厅cad资料进行参考,观看相关视频课程提升技能。更多内容请查看筑龙学社室内设计热点推荐。

230平方的主题咖啡厅设计 立即下载

等级:     文件 3MB 格式 zip

关键词: 主题咖啡厅设计 设计宅户型优化 230平咖啡厅设计 室内方案文本

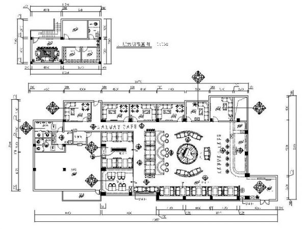
主题咖啡厅cad资料下载-230平方的主题咖啡厅设计

设计宅第九届户型优化比赛——230平方的主题咖啡厅  230平方的主题咖啡厅  230平方的主题咖啡厅  230平方的主题咖啡厅  230平方的主题咖啡厅  230平方的主题咖啡厅  230平方的主题咖啡厅 

立即下载

[武汉]浪漫优雅主题咖啡厅室内设计施工图 立即下载

等级:     文件 11MB 格式 dwg

主题咖啡厅cad资料下载-[武汉]浪漫优雅主题咖啡厅室内设计施工图

图纸深度:施工图

项目位置:湖北

设计风格:现代风格

图纸格式:CAD2000

图纸张数:41张

内容简介 (41张)  包含:封面,目录,1-2层平面图(原始平面图,平面布置图,索引图,新建墙体示意图,插座布置图,紧急出口示意图,地面铺装图,服务呼叫示意图,供给水走向图,天花布置图,天花尺寸图,天花电路图,音响布置图,消防布置图,排风系统图);立面图(吧台,玄关,观景处,聚会区,商务区,过道,卡座区,钢琴台,包厢,卫生间,门,门头,外立面)  [武汉]浪漫优雅主题咖啡厅室内设计平面图  [武汉]浪漫优雅主题咖啡厅室内设计立面图  [武汉]浪漫优雅主题咖啡厅室内设计立面图  [武汉]浪漫优

立即下载

[原创]武汉迷幻炫酷主题咖啡厅施工图 立即下载

等级:     文件 6MB 格式 dwg

关键词: 两层咖啡吧设计 咖啡吧施工图 主题咖啡吧CAD

主题咖啡厅cad资料下载-[原创]武汉迷幻炫酷主题咖啡厅施工图

空间划分:成套吧类图纸深度:施工图项目位置:湖北设计风格:现代风格图纸格式:CAD2000图纸张数:40张楼层数:2层内容简介 (40张)   包含:平面图(1-2层):(原始平面图、平面布置图、索引图、新建墙体示意图、插座布置图、紧急出口示意图、地面铺装图、服务呼叫示意图、供给水走向图、天花布置图、天花尺寸图、天花电路图、音响布置图、消防布置图、排风系统图);立面图(吧台、玄关、观景区、聚会区、商务区、过道、卡座区、包厢、卫生间、门头)  [原创]武汉迷幻炫酷主题咖啡厅施工图立面图  [原创]武汉迷幻炫酷主题咖啡厅施工图立面图  [原创]武汉

立即下载

一个主题咖啡厅的 10套设计方案(大开脑洞) 查看详情

浏览数:2134 主题咖啡厅cad资料下载-一个主题咖啡厅的 10套设计方案(大开脑洞)

记得刚进入室内设计行业的时候师父和我说:完成了平面布置就完成了室内设计的70%,小编当时还小听了这句话,没什么感觉,工作了这些年,越来越觉得有道理对师父当年耐心的指导心存感激!所以总结三句话第一句:平面布置是室内设计的核心第二句:设计是积累的过程第三句:初入此行,能遇到一个好师父太重要了! 分享一个主题咖啡厅的平面布置方案,这是原建筑平面: 设计要求:建筑面积230㎡,所处环境可以自行设定(商场、艺术区、未来世界、海底。。。),入口位置自定。   01号   初看这个方案,小编第一反应是幼教中心! 02号 &nbs

查看详情

一个 230m² 主题咖啡厅的 10 个方案 查看详情

浏览数:880 主题咖啡厅cad资料下载-一个 230m² 主题咖啡厅的 10 个方案

 01号  02号  03号  04号  05号  06号  07号  08号  09号  10号   get新技能,下戳! [原创]浪漫小资时尚多主题餐厅室内施工图(含高清效果图) [原创]福州朝代主题性客栈施工图(含效果图、水电消防系统图) 知名风水大师解析家居风水 十六位设计师解析室内设计案例  【分享】设计师你做

查看详情

藏式文化主题咖啡厅平面布置图 立即下载

等级:     文件 842KB 格式 dwg

关键词: 室内节点详图 藏式文化咖啡厅

主题咖啡厅cad资料下载-藏式文化主题咖啡厅平面布置图

内容简介 藏式文化主题咖啡厅平面布置图  

立即下载

藏式文化主题咖啡厅天花造型图 立即下载

等级:     文件 989KB 格式 dwg

主题咖啡厅cad资料下载-藏式文化主题咖啡厅天花造型图

内容简介 藏式文化主题咖啡厅天花造型图        

立即下载

藏式文化主题咖啡厅立面图 立即下载

等级:     文件 1MB 格式 dwg

主题咖啡厅cad资料下载-藏式文化主题咖啡厅立面图

内容简介 藏式文化主题咖啡厅立面图  

立即下载

方华《改造建筑空间,创意室内空间》 立即试听

学员数 1544 好评率 98%

关键词:

主题咖啡厅cad资料下载-方华《改造建筑空间,创意室内空间》 立即试听

某主题咖啡厅室内装修图 立即下载

等级:     文件 3MB 格式 dwg

主题咖啡厅cad资料下载-某主题咖啡厅室内装修图

图纸格式:CAD2000图纸深度:施工图设计风格:现代风格图纸张数:25张空间划分:成套餐厅餐饮类型:咖啡厅内容简介 某主题咖啡厅室内装修图(25张)      包括:平面图、顶面图、地面布置图;立面图(自助餐厅、过道、观景卡座、吧台、6个包房立面图);节点(钢琴台、吧台、窗套、门)。        

立即下载

科威特%ArabicaKuwaitAbuAlHasaniya咖啡厅 立即下载

浏览数:1126

关键词: AKAAH咖啡厅 休闲娱乐类装修

主题咖啡厅cad资料下载-科威特%ArabicaKuwaitAbuAlHasaniya咖啡厅

项目名称:科威特%ArabicaKuwaitAbuAlHasaniya咖啡厅 工程内容:实景照片 位置:科威特 设计公司:nendo   % ARABICA Kuwait Abu Al Hasaniya咖啡厅坐落于科威特的东海岸,是京都东山咖啡店的新分店,其室内空间经过了精心的设计。这个190平方米的咖啡厅的室内空间可以同时容纳30名顾客,此外,还设有44个室外座位。为了在室内外空间之间建立视觉联系,部分座椅平台延伸到另一侧的窗户处。同时,为了方便使用轮椅和婴儿车的顾客,店员会在咖啡厅的入口处协助点单和送单。咖啡厅的室内空间以清爽的白

立即下载

圣彼得堡现代工业风的咖啡厅 立即下载

浏览数:2382

关键词: 现代工业风的咖啡厅 餐厅空间设计 休闲娱乐类装修

主题咖啡厅cad资料下载-圣彼得堡现代工业风的咖啡厅

英文名称:St. Petersburg modern industrial style cafe 工程内容:实景照片 位置:俄罗斯   “中国制造”是位于圣彼得堡中心的一家现代亚洲咖啡馆。它位于一座历史建筑中,许多元素都受到国家的保护。这就是为什么在工程中严禁修改灰泥造型、栏杆和楼梯。这里的主要技术是强调房屋的真实性和历史遗产,把它变成一种内部元素的外壳。高天花板和第二层也在规划决定的自由方面建立了一些框架。酒吧位于空间中心,与所有进入中国的客人见面,立刻营造出一种舒适的氛围,是整个空间的组成中心。由于它的岛屿位置,所有的主要席位从中心部分移动

立即下载

安格花园咖啡厅 立即下载

浏览数:2956

关键词: 安格花园咖啡厅 休闲娱乐类装修

主题咖啡厅cad资料下载-安格花园咖啡厅

英文名称:Angar Garden Cafe工程内容:实景照片位置:其他英文名称:Angar Garden Cafe 花草,树木和池塘将一片绿意引入这座位于越南首都河内的咖啡馆之中,当地的工作室Le House设计了这座咖啡馆,创造了一个放松休闲的场所,并远离城市繁忙的街道。安格花园咖啡厅位于河内人口稠密的河东地区最近重新开发的范泉市区。该建筑以结构框架和包裹着面向街道的大型玻璃幕墙的倾斜混凝土表皮为特色。窗户上装点着伸展呈树枝形状的钢架。这些形状是咖啡馆自然主题的第一个暗示,旨在于粗犷的工业美学之中添加一丝细腻的柔美。“尽管一栋遍布钢架的房子看起来无趣而沉重,但安格花园咖啡厅随意悬

立即下载

加拿大Milkys咖啡厅 立即下载

浏览数:999

关键词: BCArchitects 休闲娱乐类装修

主题咖啡厅cad资料下载-加拿大Milkys咖啡厅

项目名称:加拿大Milkys咖啡厅 工程内容:实景照片 位置:加拿大 设计公司:Batay Csorba Architects   Milky’s咖啡厅的设计可谓是面面俱到,小到杯子里的饮料也在考虑范围之内,而这也正是本项目的主旨,即将顾客的注意力全部吸引在他们杯子里的饮料上。马克杯模仿着拿铁咖啡上的奶泡,触感柔软,同时,其颜色也经过精心的设计,采用互补的色系,与装在其中的绿茶饮品共同营造出一种令人愉悦的视觉效果,此外,大马克杯也有助于略微冷却杯中的热茶,从而增强了饮用体验。而在设计上,建筑师认为店内所有一切与饮品相关的事物——从展示

立即下载

广州就是这样的喵咖啡厅 立即下载

浏览数:3061

关键词: 就是这样的喵咖啡厅 壹所设计工作室 休闲娱乐类装修

主题咖啡厅cad资料下载-广州就是这样的喵咖啡厅

英文名称:Guangzhou is such a cafe 工程内容:实景照片 位置:广东 广州 设计公司:壹所设计工作室  就是这样的喵(Meow Restaurant)是一家探索空间趣味性的猫主题咖啡厅,由十九世纪红砖船厂仓库改造而成的猫星人部落。项目位于网红打卡点广州太古仓码头,不仅是五十只猫星人的栖息地,同时具备撸猫、就餐、派对、宠物沙龙等功能。作为人与猫的共享空间,如何在人与猫共享的空间寻找最佳的平衡点,成为这一项目的挑战。该项目的一切的尺度、造型设计都与猫有关。根据业主提到的森林风,壹所设计给出了另外一种理解,在空间中以现代抽象化的

立即下载

美国大脚怪咖啡厅 立即下载

浏览数:1131

关键词: 大脚怪咖啡厅 DBArchitecture 休闲娱乐类装修

主题咖啡厅cad资料下载-美国大脚怪咖啡厅

项目名称:美国大脚怪咖啡厅 工程内容:实景照片 位置:美国 设计公司:Dan Brunn Architecture   建筑事务所Dan Brunn Architecture通过有趣的现代设计手法,将一个前身为艺术画廊的空间变成了首家大脚怪咖啡厅。这家位于洛杉矶梅尔罗斯大道(Melrose Avenue)的大脚怪咖啡厅创造了一个神秘的空间环境,给人一种仿佛置身于森林中般的切身体验。咖啡厅的入口处有一个大脚怪的卡通大模型,它的轮廓由真实的绿植搭建而成的,为空间增添了深度和质感。山毛榉木材饰面的服务台从这一簇绿植中延伸出来,象征着森林中不

立即下载

鼓浪屿上的咖啡厅——厦门 / 反正咖啡馆 查看详情

浏览数:1355

关键词: 建筑方案设计 建筑设计案例

主题咖啡厅cad资料下载-鼓浪屿上的咖啡厅——厦门 / 反正咖啡馆

项目背景 鼓浪屿地理环境优越,特殊的殖民文化曾经让这里涌现了大量的西方建筑,然而经过数十年,许多建筑逐渐破败损毁,反正咖啡馆·鼓浪屿店原址是一处废弃的建筑,我们期望经过再设计焕发建筑的生命力。   原场地 原建筑位于鼓浪屿一处旅馆的庭院内,室内与室外地平面存在高差。由于年久失修,原建筑已经完全被植物覆盖,并且建筑的木屋架与墙体结构破损严重,无法安全使用。  原场地 周围绿植环绕采光良好,通过改造设计,我们想让这里成为兼具餐饮和展览的多功能聚会空间。 设计构思 1、在原建筑的基础上,延续坡屋顶的形

查看详情

咖啡西餐厅设计-什么样的咖啡厅让人不能抗拒 立即下载

浏览数:874 主题咖啡厅cad资料下载-咖啡西餐厅设计-什么样的咖啡厅让人不能抗拒

咖啡西餐厅设计-什么样的咖啡厅让人不能抗拒 设计公司:青岛艺科空间设计有限公司 项目名称:阳光不锈咖啡西餐厅 设计师:赵秋平 设计时间: 2018.05 完工时间: 2018.09 项目地点:山东省青岛市城阳区 项目面积:210平方     以茶会友,由于中西方文化的交融,咖啡也已慢慢的成为都市里流行的情调性饮品,日渐被社会的中青年所理解,年轻一代也能以咖啡会友了。有位哲人这样评价友谊:“得不到友谊的人将是终生可怜的孤独者,没有友情的社会,只是一片繁华的沙漠。”近年来我国许多城市咖啡厅

立即下载

艺术般的概念咖啡厅——再会吧,姑娘! 查看详情

浏览数:2080

关键词: 咖啡厅平面布局 商业空间设计案例

主题咖啡厅cad资料下载-艺术般的概念咖啡厅——再会吧,姑娘!

 △建筑外观选用藏蓝色 即该品牌主题色作为外立面的颜色 本案位于浙江省嘉兴市海盐县,建筑面积约450平米,分上下两层。「再会吧姑娘!」咖啡概念馆,该品牌定位以女性为主的咖啡空间。建筑师通过深入剖析得出以「曲线」彰显品牌内核,并将此概念融入设计中。   每个姑娘,都曾经有过清甜的少女时代,历经岁月与磨砺,「让他们脱下了白裙子,穿上了铠甲。告别了婴儿肥,涂起了大红唇」。品牌想赋予女性独特气质并忠于自己的灵魂。并希望空间能够展现出一个姑娘的成长与蜕变,从而与过去告别,迎接更好的自己。     

查看详情

印度Freshco健康咖啡厅 立即下载

浏览数:1938

关键词: Freshco健康咖啡厅 休闲娱乐类装修

主题咖啡厅cad资料下载-印度Freshco健康咖啡厅

英文名称:India Freshco Health Cafe工程内容:实景照片位置:印度 当七个好朋友一起去阿布山旅行的时候,创造一个主题咖啡厅的理念就这样诞生了。在旅行的过程中产生了很多头脑风暴,但是我们将它们抛之脑后,并敬请的享受着我们的酒水。在从阿布山回来了六个月后,创造一个主题咖啡厅的理念又一次的出现在了一些朋友的脑海中。我自己是一名建筑师,我同意在这个城市中设计出一个独特的咖啡厅。但是,我们仍然面对着一个问题,即我们怎样才能让这个咖啡厅显得与众不同呢?  在当今的世界,年轻人们对健康越来越重视了。在吃垃圾食品之前,人们会经过再三的思考。天然的果汁比软饮料

立即下载

相关知识

主题咖啡厅cad
【宠物主题咖啡厅加盟费】加盟宠物主题咖啡厅需要投资多少钱?
宠物主题咖啡厅加盟
【宠物主题咖啡厅店员岗位职责】
宠物主题咖啡厅加盟费用
宠物主题咖啡厅加盟优势
宠物主题咖啡厅加盟店(全国
建立宠物主题咖啡厅市场调查
韩国那些动物主题咖啡厅
韩国有名的动物主题咖啡厅汇总

网址: 主题咖啡厅cad https://m.mcbbbk.com/newsview152895.html

所属分类:萌宠日常
上一篇: 有关宠物的作文(精选45篇)
下一篇: 找一首03还是04年本港台的宠物